直播吧手机版

直播吧手机版 - 体育赛事直播与比分更新  |  加入收藏
当前位置: 主页   >   教学培养   >   人才培养   >   本科生培养   >   省级实验教学中心   >   正文

农业资源与环境专业实验室II简介

作者:    发布时间: 2023-04-21

农业资源与环境专业实验室

l  实验室概况

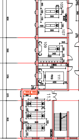
农业资源与环境实验室设在土壤楼A1楼,由三个实验室(5个房间)组成(113111109107105),其面积为180平方米,主管实验员为周崇峻实验师。

 

 

1 农业资源与环境实验室II平面布置图

 

l  实验室课程设置

农业资源与环境实验室主要面对直播吧手机版 农业资源与环境专业的本科生及研究生。主要承担课程为植物与肥料分析(实验)、农产品安全与品质分析(实验)、农业化学(实验)、植物营养与施肥(实习)、农化研究法(实习),年均课时量为9600人学时。

1 农业资源与环境实验室II主要课程设置情况表(植物与肥料分析)

 

实验一  硫酸铵、氯化铵、硝酸铵中含氮量的测定.................................. 4

实验二  碳酸氢铵中含氮量的测定 ......................................................... 6

实验三  硝态氮化肥中氮的测定.............................................................. 7

实验四  尿素中氮的测定......................................................................... 8

实验五  尿素中缩二脲含量的测定 ......................................................... 9

实验六  过磷酸钙中有效磷含量的测定.................................................. 11

实验七  磷矿粉中全磷含量的测定......................................................... 14

实验八  过磷酸钙中游离酸含量的测定.................................................. 16

实验九  草木灰全钾的测 .................................................................. 19

实验十  复合肥中氮、磷、钾含量的测定............................................... 21

实验十一 有机肥料中有机物总量和粗灰分的测定(灼烧法)...........31

实验十二 有机肥全氮、磷、钾的测定.................................................... 33

实验十三 腐殖酸类肥料(原料)中游离酸及总腐殖酸含量的测定           41

实验十六 植物灰分的测定..................................................................... 42

实验十七 植物钙、镁全量测定.............................................................. 43

实验十八 植物全硫的测定..................................................................... 46

实验十九 植物硼的测定......................................................................... 48

实验二十 植物钼的测定......................................................................... 51

实验二十 植物锰的测定..................................................................... 53

实验二十二 植物铁的测定..................................................................... 54

实验二十三 植物铜的测定..................................................................... 56

实验二十四 植物锌的测定..................................................................... 58

 

2 农业资源与环境实验室II主要课程设置情况表(农产品安全与品质分析)

 

实验一 植物蛋白质的测定(包括粗蛋白和纯蛋白)....................................................... 3

实验二  果蔬及植物茎杆中可溶性糖的测定................................................................... 6

实验三  粗淀粉测定.................................................................................................... 10

实验四  果蔬中还原型VcVc总量的测定................................................................ 14

实验五  大豆籽粒中粗脂肪的测定(大批量测定残余法)............................................ 18

实验六  农产品中粗纤维的测定酸性洗涤剂法(ADF............................................ 20

实验七  农产品中硝酸盐测定——水杨酸比色法.......................................................... 21

实验八  农产品中铅的测定(一)............................................................................... 23

实验九  农产品中砷的测定二乙基二硫代氨基甲酸银法[1]......................................... 27

实验十  农产品中铬的测定方法(1二苯基碳酰二肼比色法................................... 29

农产品中铬的测定方法(2火焰原子吸收光谱法....................................... 30

 

l  实验室建设情况

所属的实验室主要以实验教学为主。实验室仪器设备主要有电子天平、可见分光光度计、半自动定氮仪、原子吸收分光光度计、高温电阻炉、离心机、远红外消化炉、恒温培养箱、鼓风干燥箱等,为本科生和研究生实验教学提供了硬件保障和技术支撑。

实验室采用教师多媒体演示,学生实际动手操作,观察实验现象,记录实验数据,分析实验数据,发现并解决问题的教学模式,将传统的验证性实验逐渐转变为探索性实验,有效地提升了学生的学习兴趣,激发了学生的创新思维,促进了学生创新和实践能力的培养。

 

2农业资源与环境II实验室室内情况简图

 

 

 

 

 

 

 

 

 

 

 

 

3实验操作示例

Copyright © 2001-2011 直播吧手机版 - 体育赛事直播与比分更新 地址:辽宁省沈阳市东陵路120号 邮编:110866