土地资源管理专业3S实验室
l 实验室概况
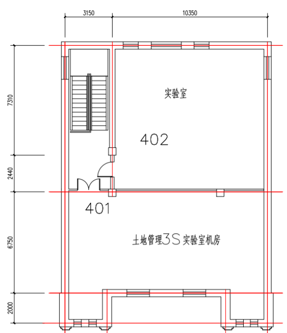
土地资源管理专业实验室设在土壤楼A座4楼,由2个实验室组成(401,402),其面积为223平方米。现任实验员孙继光高级实验师。

图1 土地资源管理专业实验室平面布置图
l 实验室课程设置
土管3S实验室主要面对直播吧手机版
及水利学院测绘工程专业本科生及研究生。土地资源管理专业的资源管理类GIS课程、环境科学与环境工程专业的CAD制图课程、植物营养分析法等课程;土壤调查与制图、土地利用调查等实习。其中“土地资源调查”课程为直播吧手机版
和水利学院测绘工程专业学生共同开课。年课程学时量大约在18000人/学时。
表1 3S实验室主要课程设置情况表
实验项目名称 |
实验课程名称 |
实验课程序号 |
熟悉CAD软件的基本功能 |
土地利用工程制图 |
M901040348-1 |
绘制土地利用工程图(一) |
土地利用工程制图 |
M901040348-2 |
绘制土地利用工程图(二) |
土地利用工程制图 |
M901040348-3 |
测制地形图与工程应用 |
土地利用工程制图 |
M901040348-4 |
ENVI与地物光谱反射率 |
应用遥感技术 |
M901040337-1 |
遥感图像的几何校正 |
应用遥感技术 |
M901040337-2 |
遥感影像的辐射纠正 |
应用遥感技术 |
M901040337-3 |
遥感数字图像处理 |
应用遥感技术 |
M901040337-4 |
遥感图象的计算机解译 |
应用遥感技术 |
M901040337-5 |
计算机辅助遥感制图 |
应用遥感技术 |
M901040337-6 |
地形图和投影 |
环境信息系统 |
M901040196-1 |
空间信息数据的输入与数字化 |
环境信息系统 |
M901040196-2 |
空间信息数据格式的转换与投影 |
环境信息系统 |
M901040196-3 |
空间信息数据库的建立、查询与检索 |
环境信息系统 |
M901040196-4 |
土壤信息DEM的建立,坡度、坡向的生成与地形分析 |
环境信息系统 |
M901040196-5 |
土壤资源与环境的空间叠加分析与缓冲区分析 |
环境信息系统 |
M901040196-6 |
基于栅格的土壤环境信息的空间分析 |
环境信息系统 |
M901040196-7 |
土壤与环境专题地图的制作 |
环境信息系统 |
M901040196-8 |
土地利用专题图制图 |
土地专题图制作 |
M901040346-1 |
土地规划专题图制图 |
土地专题图制作 |
M901040346-2 |
土地整治专题图制图 |
土地专题图制作 |
M901040346-3 |
土地分等定级与估价专题图制图 |
土地专题图制作 |
M901040346-4 |
GIS软件的基本功能 |
土地信息管理 |
M901040367-1 |
数据编辑与管理 |
土地信息管理 |
M901040367-2 |
空间分析 |
土地信息管理 |
M901040367-3 |
土地信息系统实例 |
土地信息管理 |
M901040367-4 |
地形图和几何纠正 |
地理信息科学 |
M901040351-1 |
空间数据矢量化 |
地理信息科学 |
M901040351-2 |
拓扑的创建、编辑和处理 |
地理信息科学 |
M901040351-3 |
空间查询与统计 |
地理信息科学 |
M901040351-4 |
矢量叠加分析和缓冲区分析 |
地理信息科学 |
M901040351-5 |
栅格计算与分析 |
地理信息科学 |
M901040351-6 |
DEM建立与地形分析 |
地理信息科学 |
M901040351-7 |
专题地图的制作与输出 |
地理信息科学 |
M901040351-8 |
MapInfo实践 |
土地信息系统 |
M901040321-1 |
ArcView实践 |
土地信息系统 |
M901040321-2 |
ArcGIS数据编辑与管理 |
土地信息系统 |
M901040321-3 |
ArcGIS空间分析 |
土地信息系统 |
M901040321-4 |
ArcGIS制图输出 |
土地信息系统 |
M901040321-5 |
l 实验室建设情况
实验室主要以3S类教学为主,配置计算机67台、服务器、大幅面工程扫描仪、手持GPS等。教学内容主要围绕专业课程设置展开。
实验室采用网络多媒体教学模式,实现教师与学生互动式教学,课堂气氛活跃,教学效果显著。

图2 3S实验室情况(401)

图3 3S实验室情况(402)

图4 3S实验室大幅面工程扫描仪

图 5 3S实验室外业调查设备--GPS

图6 3S实验室网络教学设备---服务器